Nansenweg (Breda)

Iedereen wil graag fijn wonen. In een woning die bij je past, nu en voor later. Als je ouder wordt, wil je het liefst zo lang mogelijk zelfstandig wonen. Bijvoorbeeld in een appartement met winkels in de buurt. Daarom helpt WonenBreburg 55-plussers aan een passende, gelijkvloerse woning in dit nieuwbouwcomplex Nansenweg in de Bredase wijk Heuvel. Door je verhuizing komt een woning vrij voor een gezin.
Ben je boven de 55 jaar? Wil je graag verhuizen naar een comfortabel appartement? En laat je een huurwoning achter? Bekijk hier de mogelijkheden om te gaan wonen in een appartement aan de Nansenweg.
Wat wordt er gebouwd?
Aan de Nansenweg bouwt WonenBreburg aan een nieuwbouwcomplex met 57 appartementen. Door de centrale ligging, naast het winkelcentrum Dr. Struyckenplein, is dit de perfecte plek om te wonen.
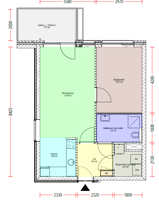
- De appartementen hebben allemaal een woonkamer met open keuken, slaapkamer(s), badkamer, gang, toilet en eigen berging.
- 10 appartementen zijn 45 m² en hebben 1 slaapkamer. Bekijk een voorbeeld plattegrond. Let op: appartementen kunnen van elkaar verschillen.
- 47 appartementen hebben 2 slaapkamers en zijn tussen 52 tot 58 m². Bekijk een voorbeeld plattegrond. Let op: appartementen kunnen van elkaar verschillen.
- De woningen zijn volledig gasloos en energiezuinig door onder andere goede isolatie en zonnepanelen op het dak. Dat bespaart je straks energiekosten!
- Verder zijn er 39 parkeerplaatsen, komen er deelauto’s in de wijk en zijn er 4 plekken voor scootmobiels op de begane grond.
Verwachte oplevering
Het nieuwbouwcomplex is opgeleverd in mei 2023.
Huurtoeslag
Mogelijk kun je voor deze woning huurtoeslag ontvangen. Met deze proefberekening kun je kijken of je hiervoor in aanmerking komt.
Ontmoeten
Als bewoners heb je volop mogelijkheden om andere bewoners te ontmoeten. Zo kun je gebruikmaken van de ontmoetingsruimte van het naastgelegen wooncomplex De Rijp in de Spitsbergenstraat. Deze community organiseert regelmatig activiteiten, ook voor de wijk.
Wanneer kun je reageren?
- Je bent ouder dan 55 jaar.
Je komt hoger op de lijst te staan als je:- een gezinswoning (sociale huur) achterlaat in de wijk Heuvel;
- een sociale huurwoning in Breda achterlaat (van Alwel, Laurentius of WonenBreburg);
- alle andere woningzoekenden die 55 jaar of ouder zijn. Lees verder bij ‘Hoe gaat het in zijn werk?’.
- Je hebt geen thuiswonende kinderen.
- Je staat ingeschreven bij Klik voor Wonen en je inkomen en huishoudgrootte staan correct genoteerd.
Hoe gaat het in zijn werk?
- Je reageert op deze appartementen via de website Klik voor Wonen. Deze herken je aan het speciale doorstroomlabel. Let op dat je zoekprofiel aan staat, zodat u de advertentie niet mist.
- Hoe langer je in je sociale huurwoning woont, hoe hoger je positie op de lijst. Je inschrijfduur is hierbij minder van belang. Als je nu in de wijk Heuvel in een eengezinswoning woont, kom je nog hoger. Wanneer er geen doorstroomkandidaten meer zijn, krijgen alle woningzoekenden boven de 55 jaar kans om hier te wonen. Dan is je inschrijfduur van belang.